Free Consultation:

JRL CAD SURVEY EXAMPLES

Project Examples & Drafting Deliverables

JRL Interior CAD Services Survey Examples

Explore a selection of field surveys, as-built drawings, and project documentation completed by JRL Interior CAD Services. Each example includes on-site photos alongside the final drafting deliverables created for architects, engineers, and project teams throughout Central Ohio.

Existing Retail Space 1 Survey

JRL CAD Output - Retail Survey

Existing Retail Space 2 Survey

JRL CAD Output - Retail Survey

Existing Retail Space 3 Survey

JRL CAD Output - Retail Survey

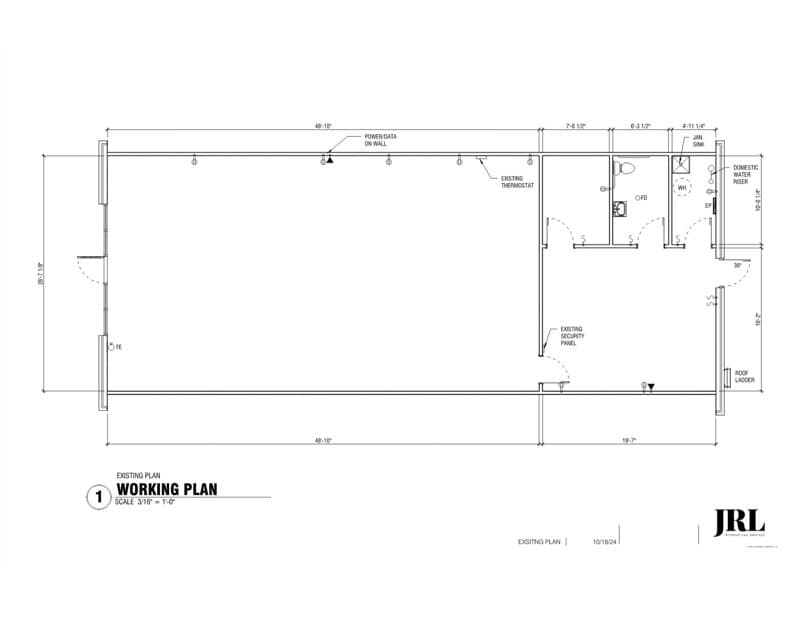
Office Space Survey

JRL CAD Output - Office Space Survey

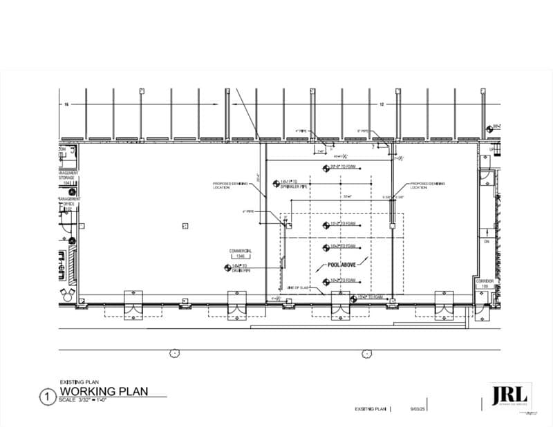
Recreational Space Survey

JRL CAD Output - Recreation Space Survey

Why Choose JRL Interior CAD Services for Your Survey & Drafting Needs

With over 20 years of field measurement and drafting experience, JRL delivers accurate, dependable building documentation that helps architects, engineers, and project managers move confidently from planning to design. Each project receives the same level of precision and personal service — keeping your work organized and on track.

What sets our drafting work apart:

  • Accurate CAD and Revit drafting deliverables
  • Clear communication and responsive coordination
  • Clean, well-organized drawing sets
  • Verified field measurements (when required)
  • On-time delivery with attention to detail
Start Your Project with Confidence

Whether you need a single space documented or a full set of building drawings prepared, our team provides accurate, dependable services tailored to your project. We’re here to support you from field measurements to final deliverables.

Contact JRL Interior CAD Services today to request a quote or to schedule your next project.

Frequently Asked Questions

We are happy to answer any questions you may have and we have posted a few of the most common questions we receive below. Our clients can work directly with the surveyor for personalized services and support.

What is the process for engaging your services?

Clients can simply reach out to me through e-mail or phone to discuss project type and requirements. I will then provide a proposal to do the discussed work. Once the proposal has been reviewed and signed, I will schedule and perform the work providing the client with an estimated time for completing the work.

What deliverables will a customer receive?
  • Clients will receive either a CAD or Revit file of the surveyed space for their use.
  • A PDF of the surveyed plan(s)
  • Elevations as necessary
  • JPEG’s or PNG’s of photos of space
  • A 3D video file of the space surveyed
What are your pricing options or price ranges?

For any space under 2,500 SF the cost per square foot is $1.40 SF.

Any spaces over 2,500 SF will be negotiated per project needs.

Do you offer field verification for measurements?

Yes. When needed, we verify existing conditions on-site to ensure accuracy before drafting. This helps eliminate discrepancies and streamlines planning and design work.

Can you work from client-provided sketches or existing plans?

Absolutely. We can refine, correct, or convert client-provided sketches, PDFs, and older drawings into clean, accurate CAD/Revit files.

SCHEDULE CONSULTATION

10 + 12 =